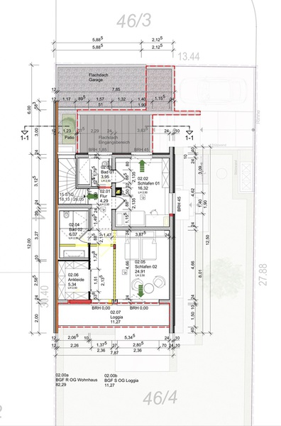
Sanierung und Erweiterung Königstein 2

Eine Doppelhaushälfte aus den 60er Jahren wird für ein Ehepaar energetisch saniert, umgebaut und erweitert. 

 

 

Ansicht Ostfassade
Aussenanlage
Martin Habes in Schmitten-Oberreifenberg, DE auf Houzz
Martin Habes in Schmitten-Oberreifenberg, DE auf Houzz
Martin Habes in Schmitten-Oberreifenberg, DE auf Houzz
Martin Habes in Schmitten-Oberreifenberg, DE auf Houzz
Druckversion | Sitemap
© habes-architektur

Anrufen

E-Mail

Anfahrt