Wohnhaus - Verdichtung FFM

Auf einem Grundstück in Frankfurt wurde in Ergänzung zum bestehenden Einfamilienhaus, im Hofbereich, der Bau eines zusätzlichen Wohnhaus beantragt.

 

Da das bestehende Wohnhaus nicht barrierefrei ausgebildet ist, soll im Erdgeschoss des neu entstehenden Hauses eine barrierefreie Wohneinheit für die Eigentümerin geschaffen werden.

Es entsteht ein Hofhaus als Grenzbebauung zum Nachbargrundstück.

Die bestehende Doppelgarage und die an der Grenze stehenden Nebengebäude, der ehemalige Schweinestalls und das Öltanklager, werden abgerissen.

Der Neubau und die erschliessende Treppe für die Wohnung im OG werden an die Grenze gesetzt, wobei die bestehende Grenzwand als Brandwand ausgebildet wird.

Die bisher betonierte Zufahrt und Hoffläche wird entsiegelt und als versickerungsfähige Fläche ausgebildet. 

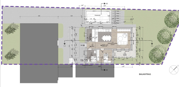
Grundriss EG

 

Grundriss OG

Das neue, 2-geschossige Wohnhaus mit Satteldach, beinhaltet im Erdgeschoss und Im Obergeschoss jeweils eine 2-Zimmerwohnung mit ca. 60 qm Wohnfläche.

Die Wohnung im Erdgeschoss ist barrierefrei ausgebildet.
Die Raumzuschnitte beider Wohnungen sind identischen. 

 

Das Gebäude ist ein Massivbau und entspricht den aktuellen Anforderungen der EnEV. Das Gebäude wird mit einer durchgängigen Bodenplatte gegründet. Die Firsthöhe entspricht der Höhe des Bestandes. Kubatur und Firstrichtung fügen sich in den Bebauungszusammenhang der Nachbargrundstücke ein.

Martin Habes in Schmitten-Oberreifenberg, DE auf Houzz
Martin Habes in Schmitten-Oberreifenberg, DE auf Houzz
Martin Habes in Schmitten-Oberreifenberg, DE auf Houzz
Martin Habes in Schmitten-Oberreifenberg, DE auf Houzz
Druckversion | Sitemap
© habes-architektur

Anrufen

E-Mail

Anfahrt